
60KG lou-tray Railways Steel Rail
Pwodwi: 60KG tren lou
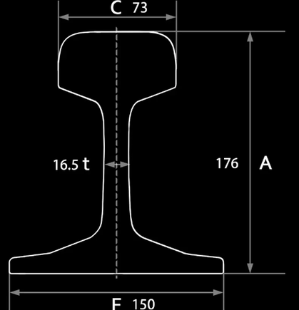
Wotè tren: 176mm (± 0.6mm)
lajè baz: 150mm (± 1.0mm)
Epesè entènèt: 21.0mm (± 0.7mm)
tolerans longè pou longè fiks: ± 20mm
Entwodiksyon pwodwi
GB Standard Steel Rail se yon kalite komen nan ray asye, ki pwodui dapre estanda GB. Anjeneral, GB Standard Steel Rail se sitou fèt pa MateryèlU71Mn, U75V.Gwosè GB Standard Steel Rail yo enkli: 38kg, 43kg, 50kg, 60kg, 75kg, elatriye Longè prensipal GB Standard Steel Rail se 6-12 oswa 12.5-25m.
GNEE RAIL estrikteman respekte GB/T 2585-2017 Hot-Rail woule pou aplikasyon tren pou delivre pèfòmans segondè.60KG lou-tray Railways Steel Rail, Enjenieri pou aplikasyon pou tren lou-ki pi egzijan atravè lemond. Avèk yon koup transvèsal solid (176mm wotè, 150mm lajè baz) ak pwa teyorik 60.64kg/m.

Espesifikasyon pwodwi

Spesifikasyon Rail
| Wotè: 176 mm | Lajè baz: 150 mm |
| Lajè tèt: 73 mm | Epesè Web: 16.5 mm |
| Longè: 6m-12.5m | Materyèl: U71Mn |
| Pwa: 60.64 kg/m | Estanda: GB2585-2007 |
Si ou gen kondisyon espesyal pou longè oswa pi wo materyèl fòs, tanpri kontakte nou pou pwodiksyon espesyal koutim.
Aplikasyon pou pwodwi
Railway prensipal yo:Yo itilize sou liy prensipal ki okipe yo ak tren gwo -vitès oswa machandiz lou. Asire operasyon ki estab ak lis menm anba estrès dinamik pwolonje.
Liy transpò iben:Yo itilize nan liy métro lou -yo ak rezo tren banlye yo. Bay gwo estabilite chaj ak sipòte souvan gwo vitès -kouri nan koridò vil okipe yo.
Lojistik gwo-:Sipòte gwo-chaj kabwèt nan pò ak plant asye. Apwopriye pou zòn ki gen woulman kago souvan ak vibwasyon alontèm -.

Anbalaj pwodwi ak livrezon
Nan GNEE RAIL, nou asire livrezon rapid ak serye nan ray teknik nan pò atravè lemond. Avèk patenarya estratejik ak solisyon lojistik fleksib, lòd ou a rive alè, chak fwa.




GNEE RAIL ofri ray divès kalite espesifikasyon ak estanda, etabli yon prezans mache solid atravè bon jan kalite serye. Pwosesis fabrikasyon an estrikteman swiv estanda endistri yo, ak chak pakèt ak anpil atansyon enspekte; dokiman konplè sou konfòmite materyèl yo disponib sou demann. Ekip nou an bay sipò konplè-sik la, depi premye konsiltasyon egzijans yo rive nan sèvis yo swiv-, pou asire koperasyon lis ak konplikasyon-gratis. Si ou gen bezwen pèsonalizasyon espesyal konsènan espesifikasyon tren, materyèl, oswa lòt kondisyon, tanpri kontakte nou, epi nou pral satisfè tout bezwen ou yo.



Baj popilè: 60kg lou-bwote tren asye tren, Lachin 60kg lou-bwote tren asye tren manifaktirè, founisè, faktori
Voye rechèch










